断熱リフォームを使用して地場工務店の匠が手掛けた 断熱リノベの実例集『断熱リノベの匠』を展開
第11弾は、信楽焼を取り入れ三代で建て継ぐ事例第11弾は、信楽焼を取り入れ三代で建て継ぐ事例
株式会社LIXIL(以下、LIXIL)は、地場工務店の匠が手掛けた断熱リノベの実例集『断熱リノベの匠』を展開しています。そしてこの度、第11弾としてSW(スーパーウォール)工法リフォーム加盟店の株式会社 森工務店(滋賀県、代表取締役 森 昌智)が手掛けた、信楽焼を取り入れ三代で建て継ぐ事例を公開したので、お知らせします。
日本六古窯のひとつとして知られる陶芸のまち、滋賀県甲賀市信楽町で、昭和18年に大工であった祖父が創業した森工務店。今回ご紹介する断熱リノベの匠(たくみ)森 昌智氏は、その3代目、自らも大工として現場を経験し、今は設計・デザインを手掛け、地域に根差した工務
店としてまちの暮らしを支え続けている。
そんな匠が挑んだのは、自身が育った実家のフルリノベーションだ。74年前の祖父の建築、50年前に行なった父による増築、その「家族の歴史」を壊すのではなく高性能な断熱リノベによって建て継ぎ、モデルハウスとして再生する道を選んだ。「祖父が建てた家を父が増築し、それを私がリノベする。このストーリー自体が、お客様の心に響く価値になると思ったんです」祖父の代からの立派な梁、父が手掛けた鎧張りの外装などをあえて「見せる」ことで、新築にはないリノベならではの物語を体感してもらう。それはお客様にとっても家の記憶、思い出を残すという、共感につながるのではないかと森氏は語る。その背景にあるのは、新築が年間6棟程度しか建たないという地域の厳しい現状だ。「まちに眠る約4000世帯の既存住宅をいかに快適な家に変えていくか」。その使命感と市場開拓の必然性が、森氏をリノベのモデルハウスという新たな挑戦へと突き動かしたという。
株式会社 森工務店
代表取締役 森 昌智 氏
創業83 年、地元で愛され続けている森工務店。その三代目として、新築・リノベの設計・デザインを手掛ける匠。工務店として安心・安全・健康、長持ちする家をつくる、地域のひと同士のつながりをつくる、活
気あふれるまちをつくる、この3つを基本軸にさまざまな活動を行う中で、今回誕生したモデルハウスが重要な拠点になると、森氏も期待をよせている。
モデルハウスを手がけるのは初めてという匠だが、さてどのような空間づくり
を行なったのだろうか。まずデザイン面では、信楽という土地の歴史や文化を巧みに取り入れたという。たとえば、外構には地元の「長石」を敷き詰め、外壁の塗り壁は信楽の土の質感をイメージ。玄関を開ければ、まるで風景画のような窓の仕掛け。さらに、特注の信楽焼の洗面ボウルや、真鍮を用いたオーダーキッチンなど、細部にまで「一点物」へのこだわりを凝縮させた。それは地元の芸術家や移住者が多い町において、森工務店の「感性」を伝える重要なメッセージとなっている。しかし、本質はデザインだけではない。特筆すべきはその性能。大きな開口部を設けながらも、外断熱と内断熱を組み合わせた付加断熱により、UA値0.39という断熱性能を実現。かつては冬場の光熱費がかなり高額だったそうだが、リノベ後は大きく削減。この断熱性の体感こそが何よりの説得力になると匠は言う。
森氏にとって、このモデルハウスは「未来への投資」だという。今やらないと手遅れになると考え、善は急げと決断。「信楽の新築需要は限られています。しかし、先ほどもお話ししたように断熱不足に悩む既存住宅は4000世帯もあります。だから、ここを起点に3年後リノベ市場を爆発させたいのです」 と熱く語る。
その戦略は空間づくりにも反映されていて、モデルハウス内には、多目的ホールが設けてあり、地域の人々や作家が集うワークショップを毎月開催する計画だ。「地域の人をつなぎ、町を活気づける」という森工務店の理念を、まさに具現化した場所なのである。「これは地域特性だと思いますが、いい噂も悪い噂も一瞬で伝わります」よい結果を生み出せばそれが伝染していく、その発信元としてモデルハウスは一役買ってくれると期待しているそうだ。
美しい里山の風景が残り、『信楽焼』の産地として知られるこの町は、タヌキの置物で溢れている。歴史と文化が融合した信楽町には、国内外からの移住者が多いとのこと。その土地柄からも、古い建物を壊さずに残すリノベとの相性が良いと匠は考えている。
木目が美しい地元の大橋の杉材を使用した造作棚。 森氏が暮らしていたときは自分の部屋だったという、
存在感を放つキッチンはオーダー品。 開放感あふれる2階の空間。窓を開けておくと川から
フレームやコンセントには真鍮があしらわれ、 吹いてくる風が心地よいのだそう。10メートルほど
こだわりが詰まっている。 ある棟木はすべて一本物とのこと。
森工務店の創業者であるお祖父様が昭和26年に建てた家、当時の写真。その後、お父様が増築され、リノベBeforeの写真となり、今回フルリノベーションし、現在の姿に。
before after
棟木などの躯体を生かし美しくデザインされた寝室。 サイズ、デザイン、釉薬まで指定して
窓からは夏の花火大会が見えるという。 オーダーで作った、信楽焼の洗面ボウル。
今後、体験宿泊も想定しているのだとか。
玄関ホールから見えるFIX窓越しの坪庭。
正面から見ると坪庭の景色が一幅の絵画に見える。
モデルハウス戦略とは別にもう一つ重視しているのがカバー工法による断熱リノベだそうだ。4号特例の縮小もあり、確認申請を伴う大規模改修にはハードルを感じるお客様も存在する。そこで、外壁の上から断熱材とサイディングを施工するカバー工法の実績も積み重ねるように。コストを抑えつつ、光熱費を下げる。この「手の届く快適さ」の提案が大きな武器になると森氏は考えている。実際にスタッフの実家が「めちゃくちゃ寒い」とのことで、カバー工法で改修したところ、ご両親が「暖かくなった」と大喜びなのだとか。
また、匠は森工務店の将来も見据えている。「現在違う会社で修行中の長男、大工である次男、広報を担う長女のためにも、新築とリノベの両輪で戦える盤石な基盤を渡したい」三代にわたる技術と想いを凝縮し、次世代へと続く工務店の未来も描き出そうとしている。そんな匠の挑戦はまだ始まったばかり。実りある成長に期待しつつ、今後の動向にも注目してみたい。
築74年の住宅ではあるものの、残せる躯体はできるだけ残しフルリノベーション。
建築の軌跡を大切にしながら、丁寧に断熱・耐震工事が進められた。
before
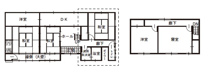
昔ながらの日本家屋らしい2階建住宅。1階右側の点線で囲んだスペースが50年ほど前にお父様が増築した部分。
1F 2F
モデルハウスを目的にプランを一新。 宿泊体験を想定した寝室やイベント用の多目的ルームも備えている。
Reform Data
延床面積:139.71坪/木造2階建/築年数:1951年に竣工・築74年/エリア:滋賀県
甲賀市信楽町 断熱リフォームによる性能改善:省エネ区分 5地域
改修後UA値:0.39W/m²・K C値:1.22㎠/㎡
まるごと断熱リフォームは、今ある住まいを、一棟まるごと断熱改修することで高性能住宅化できる先進の工法。すぐれた性能の断熱材により、壁・天井・床をしっかり覆い、高断熱の窓や玄関ドアに交換。外気温の影響が少なく、快適・健康・省エネを実感できる暮らしを実現する。